wns燃气蒸汽锅炉的工作原理及基本构成?wns燃气蒸汽锅炉的应用要比燃气热水锅炉广泛很多,包括食品厂、化工厂、建材厂、钢铁厂等,无论是轻工业还是重工业,都是离不开蒸汽锅炉的,今天就来详细了解一下wns燃气蒸汽锅炉的原理与结构。
1、wns燃气蒸汽锅炉的工作原理:
WNS燃气蒸汽锅炉在炉内燃烧燃料所释放的热量,锅炉内的水被加热蒸发成蒸汽。水在锅(鼓)中通过燃烧炉内气体燃料释放的能量持续加热,温度上升并产生加压蒸汽。当水的沸点随着压力的增加而升高时,锅是密封的。锅炉内水蒸气的膨胀受到限制,产生压力形成热动力(严格地说,锅炉的蒸汽是由恒压水加热到锅炉管中的饱和水形成的),是一种广泛使用的能源。
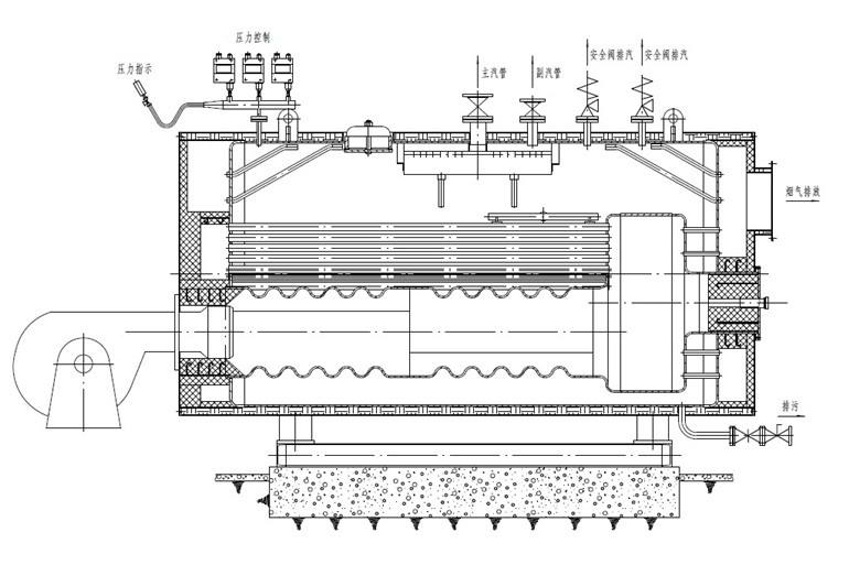
2、wns燃气蒸汽锅炉的基本构成:
WNS燃气蒸汽锅炉主要由锅炉壳体和炉胆两个主体及附件、仪表附件、自动控制和保护系统组成,保证其安全经济连续运行。这种锅炉是一种水冷锅炉,锅炉管的左右两侧设有两个回燃烟管,锅炉筒前的前烟盒是可再入的。锅筒与底部连接箱之间有下降管和水冷管,构成燃烧室的结构。鼓上汽水分离器,为了减少蒸汽的水。锅炉本体受热面为锅炉筒下部、水冷管和烟火管。